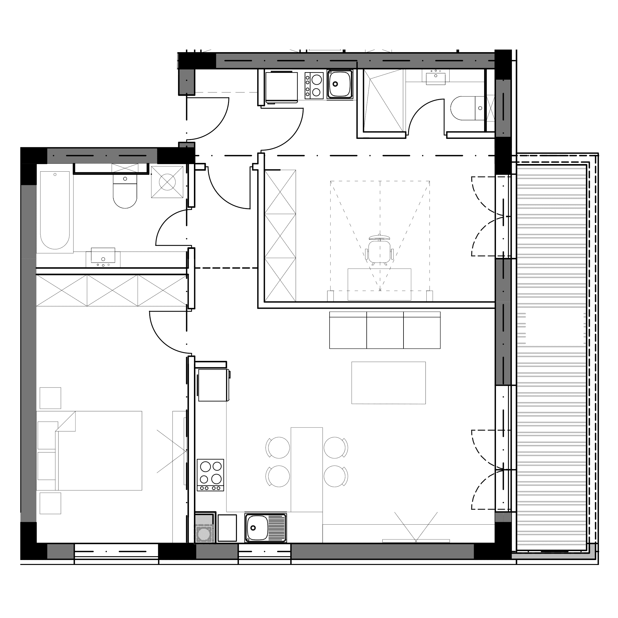
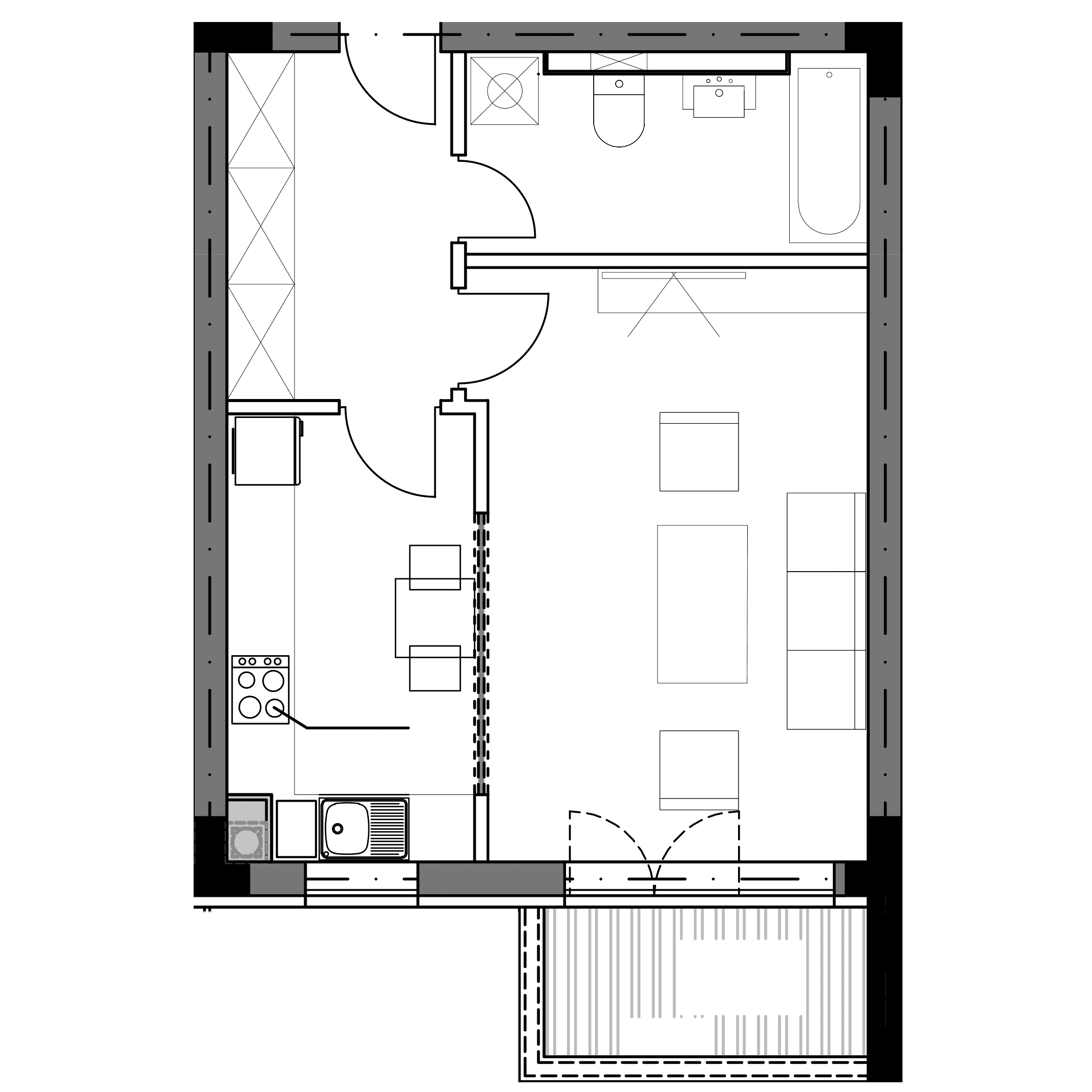
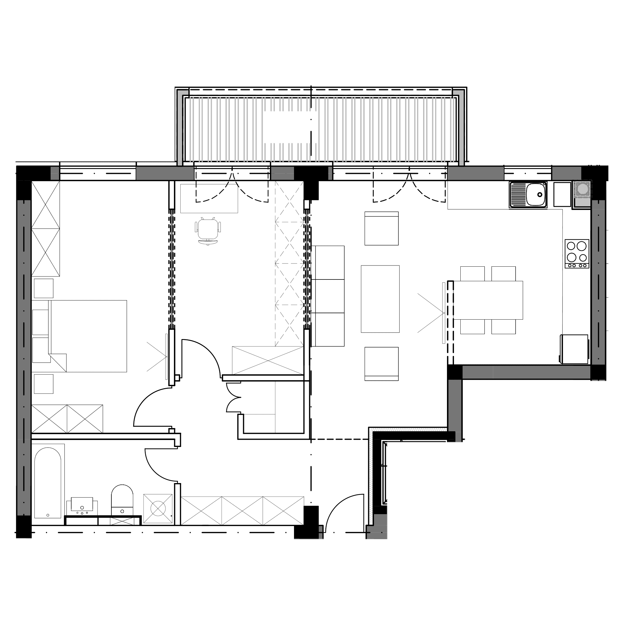
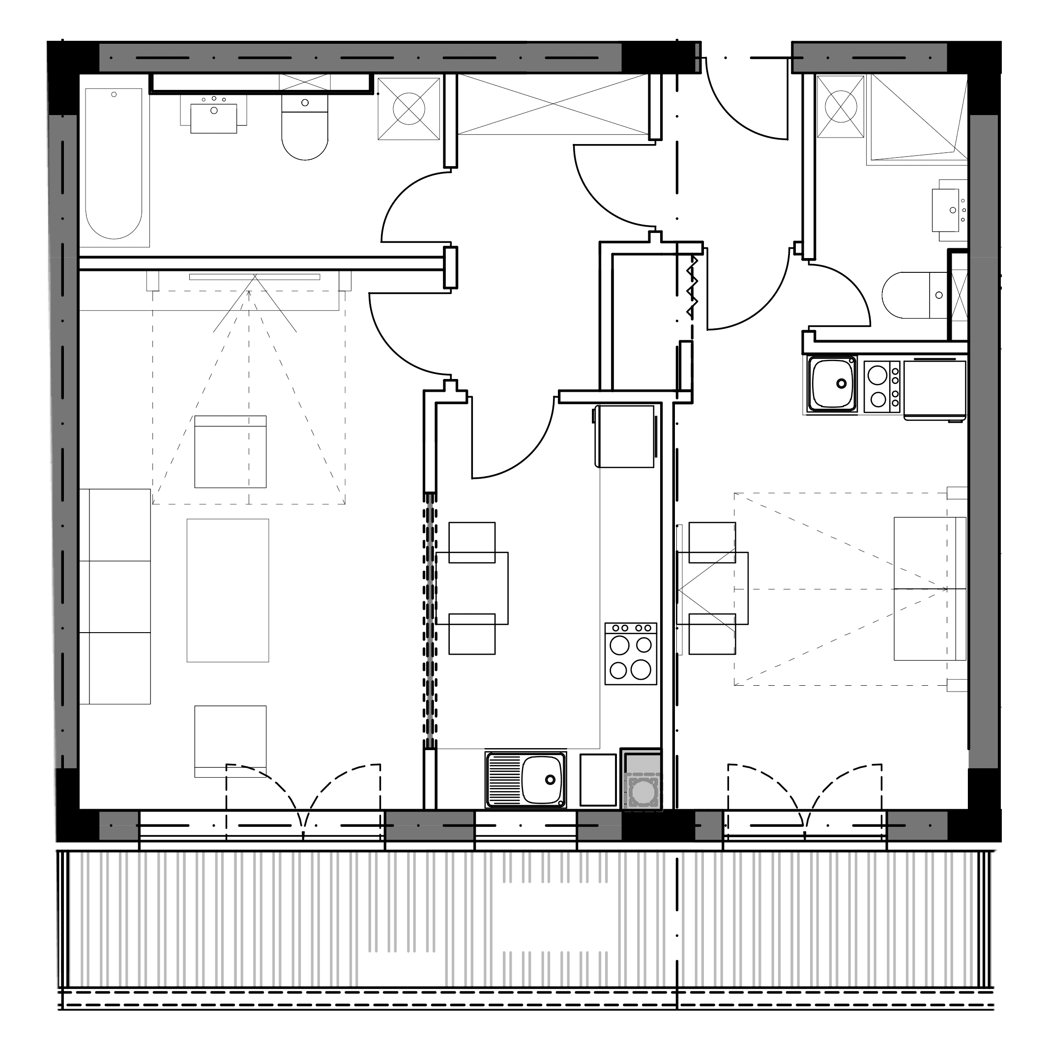
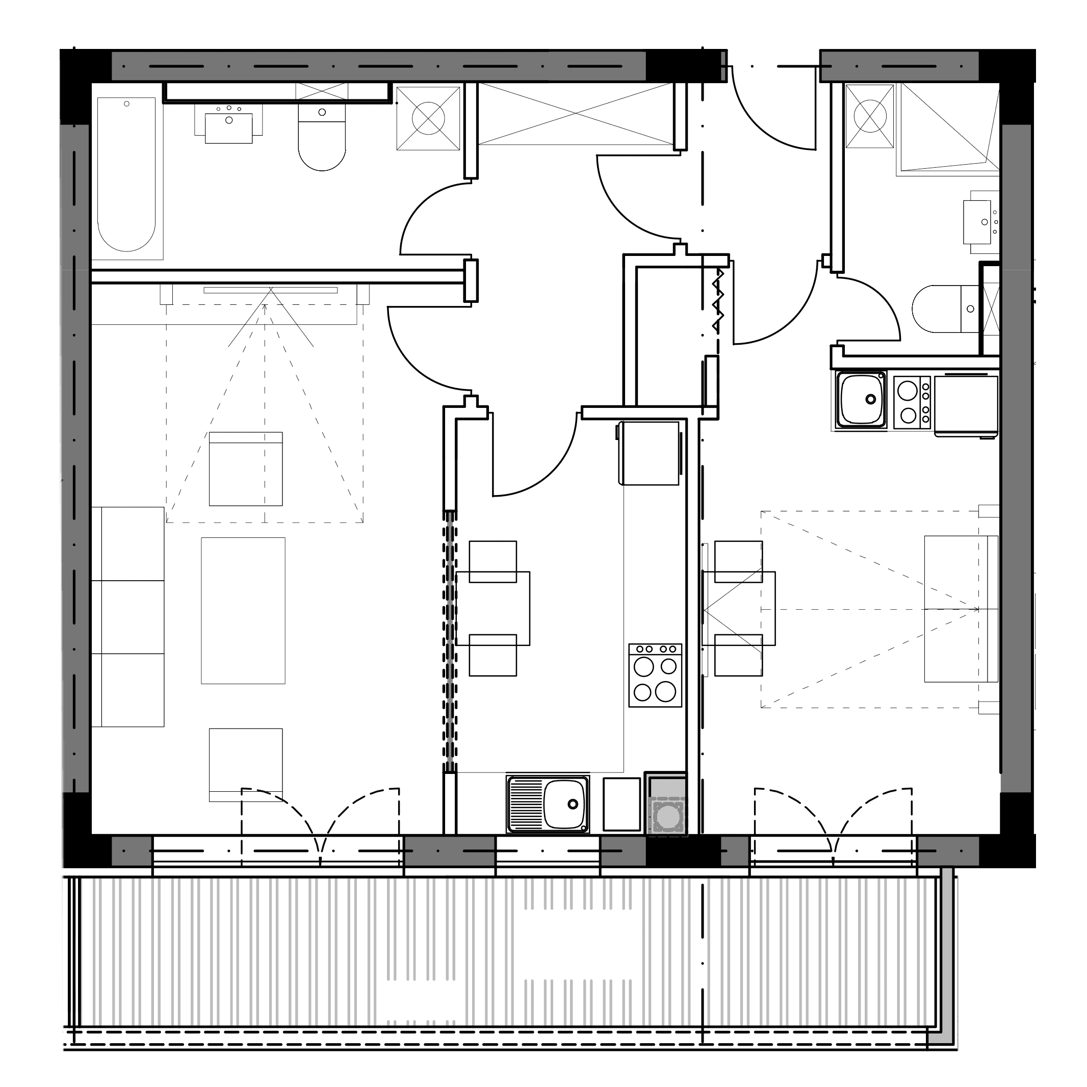
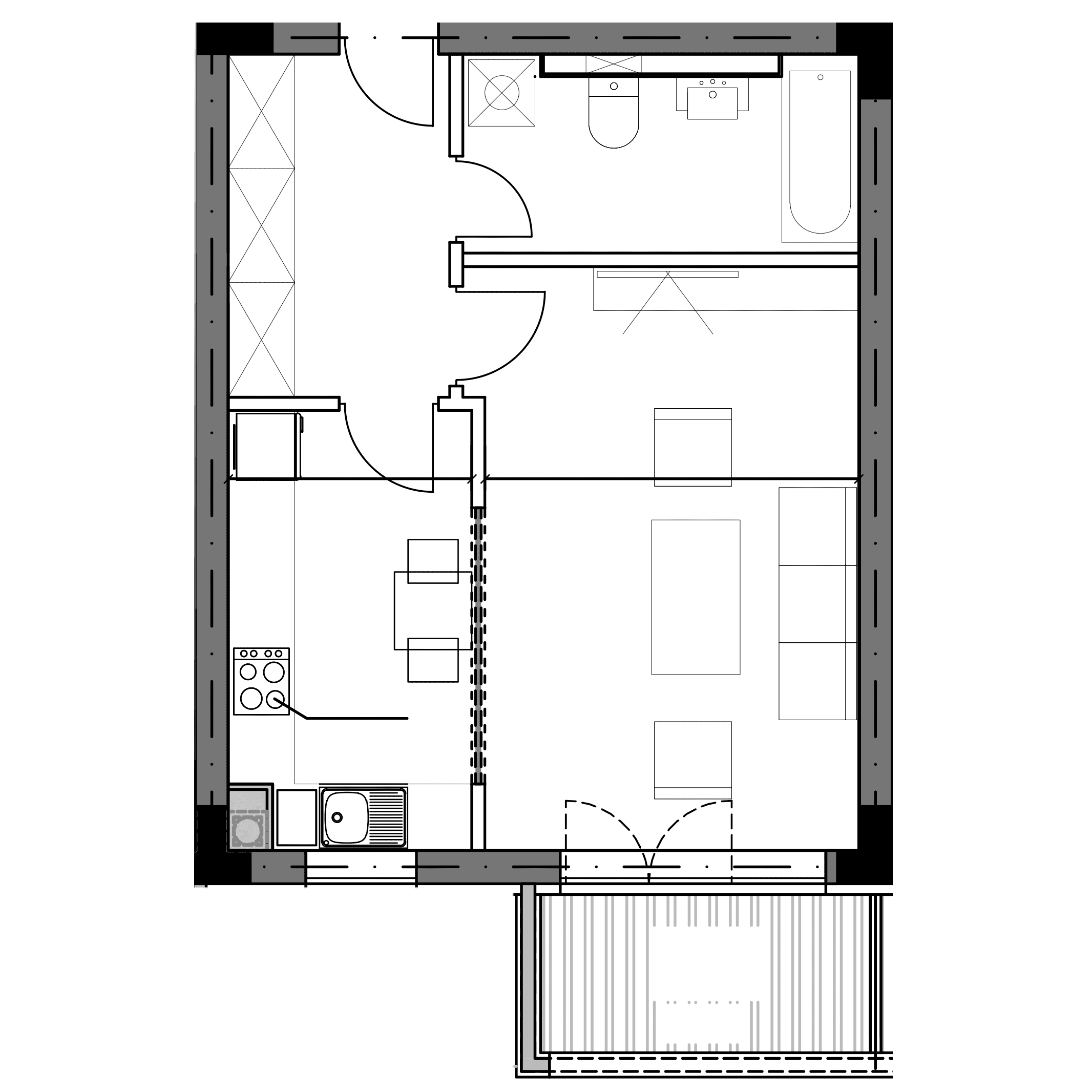
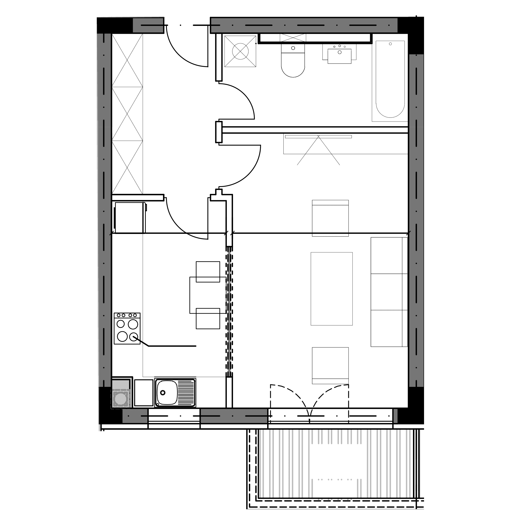
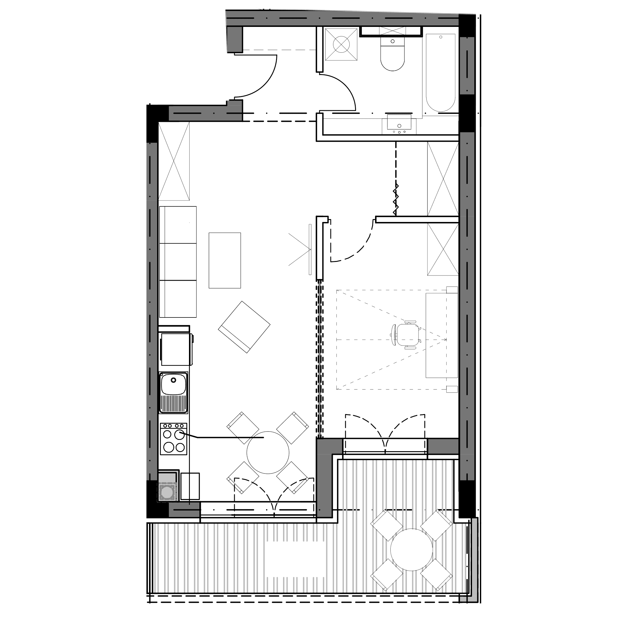
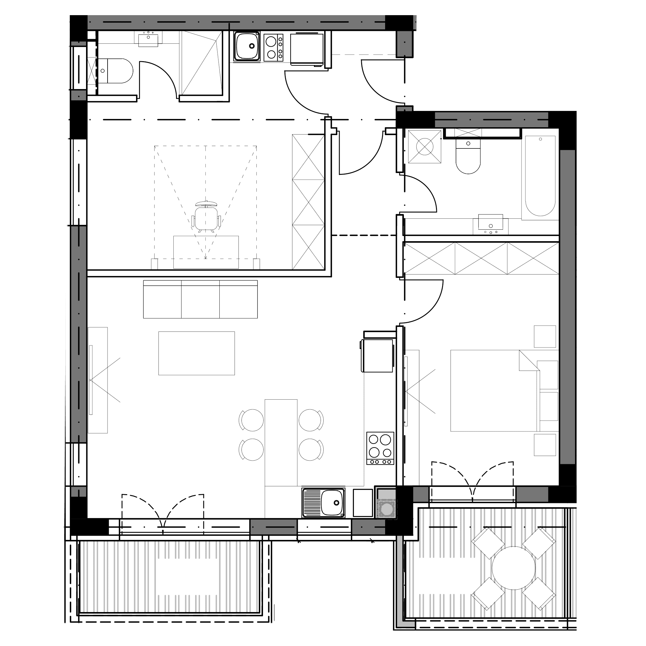
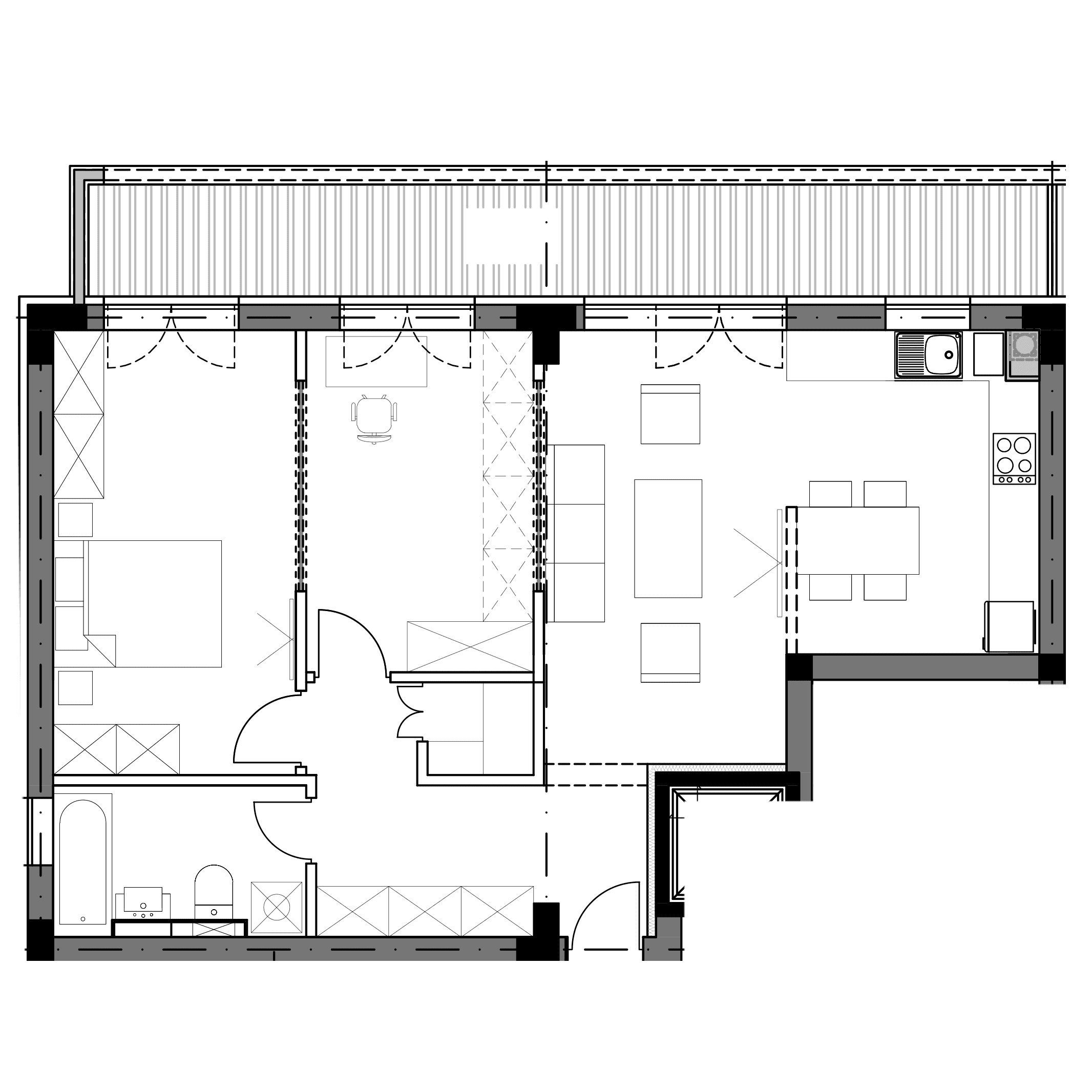
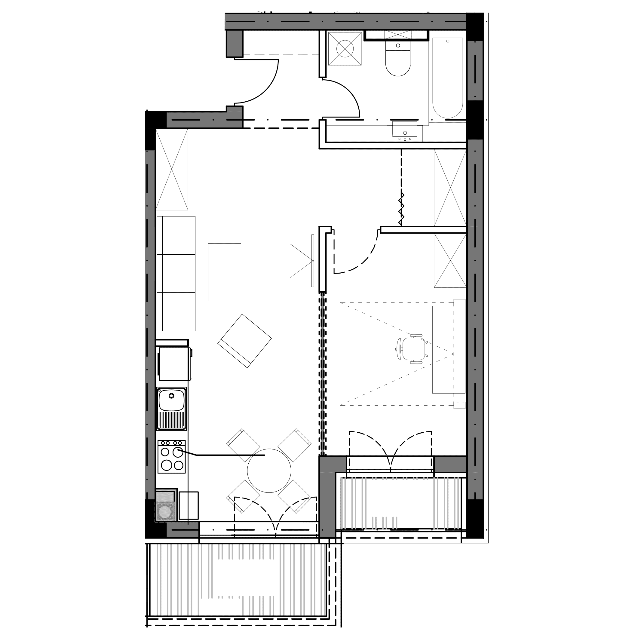
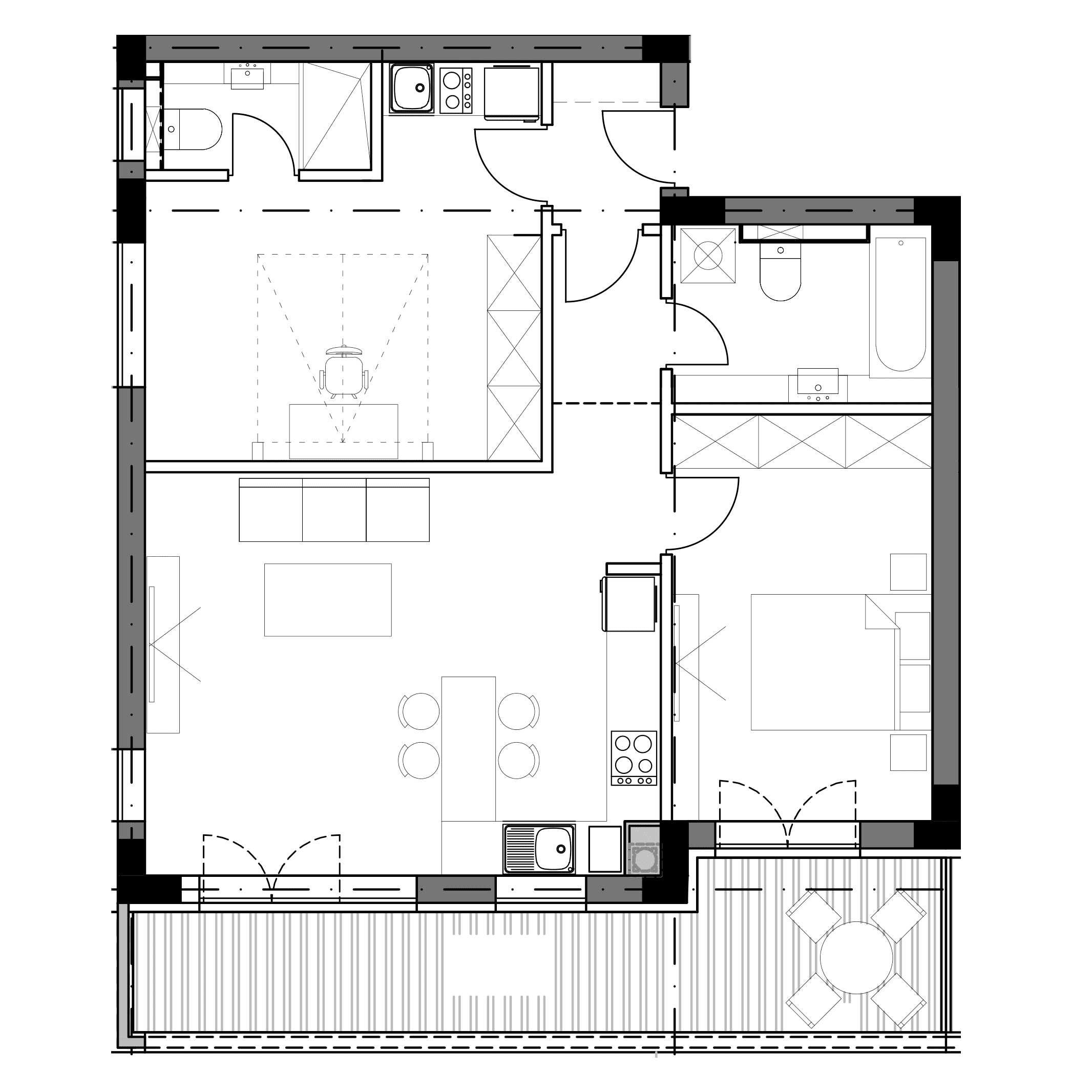
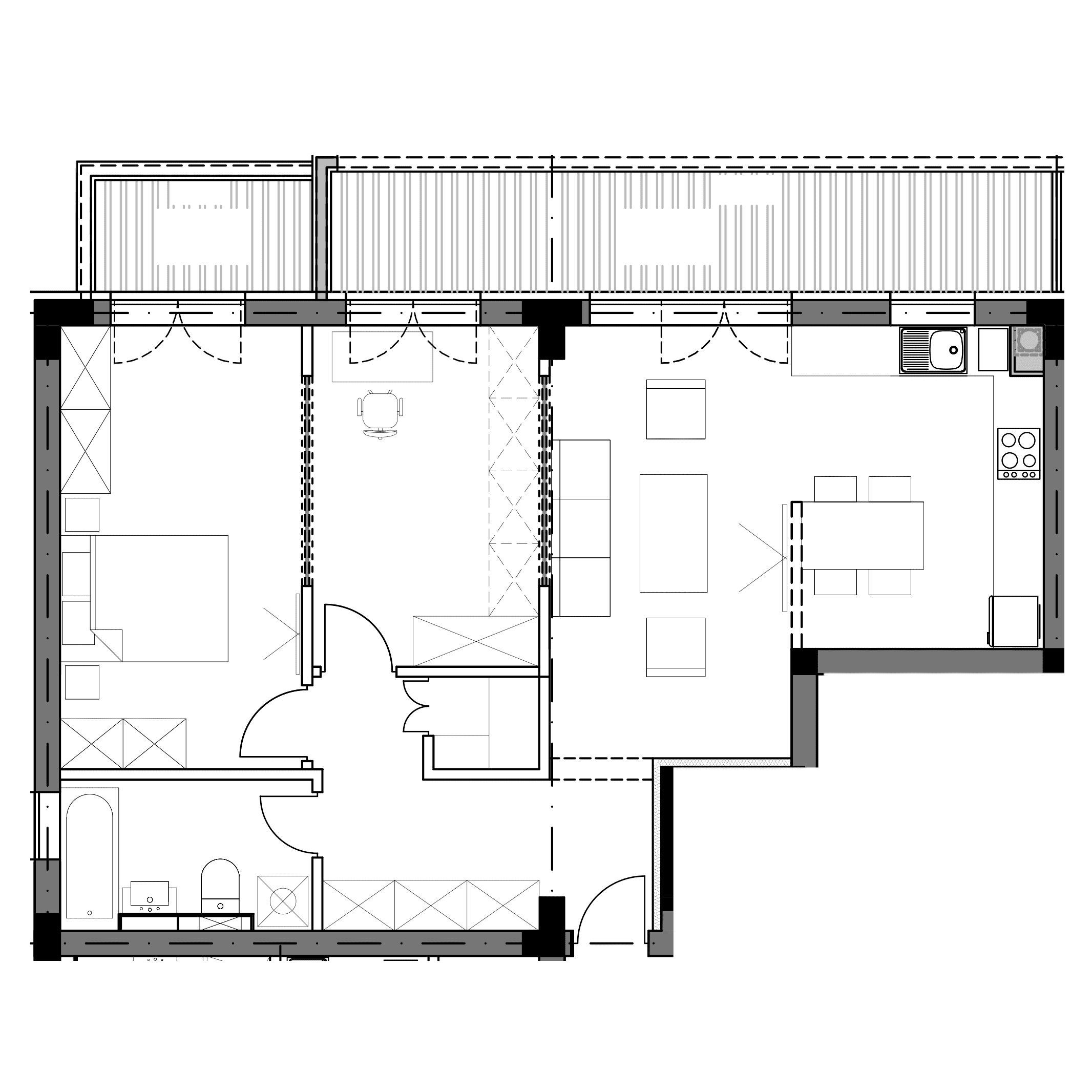
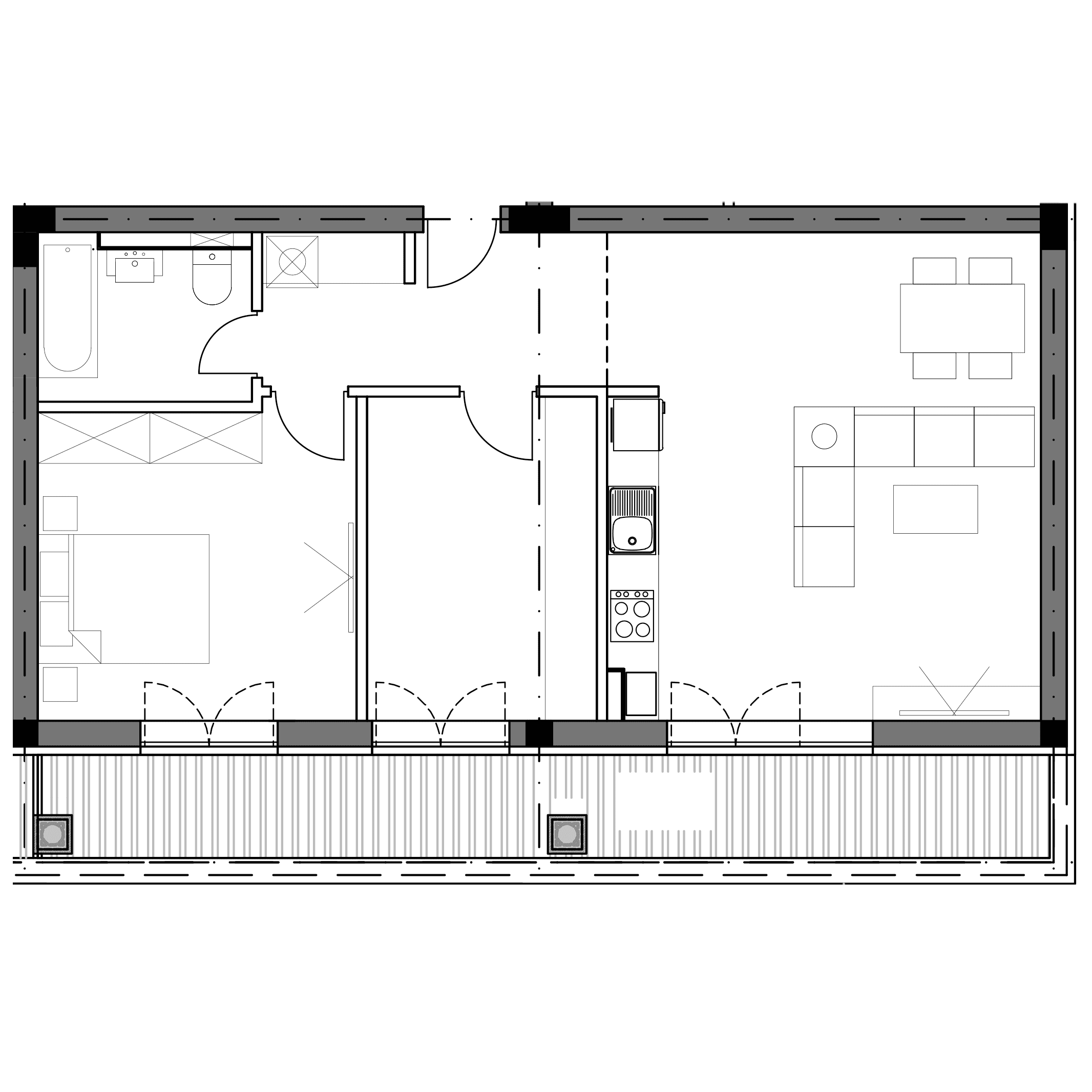
Apartamente disponibile în Maurer Residence
Prețuri începând cu 58.000 € + TVA
Filtrează
Clădire
B6
B7
Camere
1
2
2,5
2.5
3
4
Parter - B6
Etaj 1 - B6
Etaj 2 - B6
Etaj 3 - B6
Etaj 4 - B6
Etaj 1 - B7
Etaj 2 - B7
Etaj 3 - B7
Etaj 4 - B7
Etaj Retras - B7
Mai mult decât locuințe, un mod de viață.
Visăm să construim nu doar spații de locuit, ci comunități autentice și pline de viață, unde fiecare detaliu este gândit pentru a redefini conceptul de „Acasă”. Contribuim la îmbunătățirea calității vieții și la dezvoltarea armonioasă a mediului urban din dorința de a oferi copiilor noștri un viitor mai bun.
Construim de 17 de ani • Peste 12,000 apartamente livrate • 6 orașe in care construim • Mii de clienți fericiți • Peste 20 de premii naționale și internaționale
Respect
Unitate
Viziune
Acum este momentul în care dorințele tale caută forma locului pe care să îl numești „acasă”.
































